Главная _
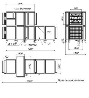
Приточно-вытяжная установка Breezart 8000 Aqua RR F
Приточно-вытяжная установка Breezart 8000 Aqua RR F
По запросу
Быстрый заказДоставка в Ростов-на-Дону
До ПВЗ: от 220 руб., 2 - 3 дня
Доставка до двери: от 370 руб., 2 - 3 дня
23 пункта выдачи в Ростове-на-Дону Подробнее
Бренд: Breezart
Описание:
- Приточно-вытяжная установка с роторным рекуператором, фреоновым охладителем, водяным нагревателем и смесительным узлом с 2-х или 3-х ходовым клапаном (узел подбирается исходя из типа водоснабжения).
- В комплекте с воздушными клапанами с электроприводом (с возвратной пружиной), системой цифровой автоматики JetLogic с цветным сенсорным пультом управления и всеми необходимыми датчиками.
- Блок автоматики управляет различными типами ККБ.
- Вентиляторы Ebmpapst серии EC Немецкого производства.
- Автоматика:
- Возможность управления клапаном смесительного узла калорифера для нагрева воздуха до заданной температуры, защита от замораживания.
- 10 ступеней регулировки скорости вращения вентилятора.
- Управление увлажнителем воздуха с пульта вентустановки.
- Управление ККБ различного типа, в том числе сигналом 0-10В.
- Отслеживание загрязненности воздушного фильтра (цифровой датчик давления).
- Недельных сценариев, функции «Комфорт» и «Рестарт» восемь.
- Текущее время (не сбрасываются при сбое питания).
- Возможность создания VAV-системы (требуется набор VAV-DP).
- Порты ModBus RTU для подключения к системе «умный дом».
- Дистанционное управление с компьютера или смартфона / планшета.
- Перечень совместимых опций:
- WEB – Удаленное управление вентустановкой через web-интерфейс.
- CT – Поддержание температуры в помещении по доп. датчику температуры (каскадный регулятор).
- CC – Автоматическое переключение тепло/холод (датчик заказывается отдельно).
- DC – Выход "сухие контакты" для управления ККБ типа On/Off (несовместимо с PC).
- PC – Выход 0-10В для управления инверторным ККБ (несовместимо с DC).
- Перечень совместимого оборудования:
- TPD-283U-H – Пульт управления Breezart с цветным сенсорным дисплеем.
- VAV-DP2 – Комплект для создания VAV-системы (модуль JL202DPR, RSCON, кабель 15м, трубка 1м, адаптер).
Характеристики:
- Вес (кг) 350.
- Код воздушного фильтра ФВК-790-865-300-8-G4.
- Код нагревателя W88-S3-32-8-15 / W88-S2-32-8-2,1 / W88-S2-32-8-2,7.
- Мощность, кВт6.4.
- Напряжение В380.
- Производительность, м3/ч8000.
- Тип нагревателя Водяной.
- Тип охлаждения Фреоновый.
- Тип рекуператора Роторный.
- Ток (А):10.6.
- Уровень шума в канале дБА 83/91/71.
- Уровень шума, дБа 56.
| Производитель: | Breezart |
| Цвет: | серебро серый |
Авторизуйтесь, чтобы оставить отзыв: Войти








